Fine Custom Woodwork and Refinishing Since 1947
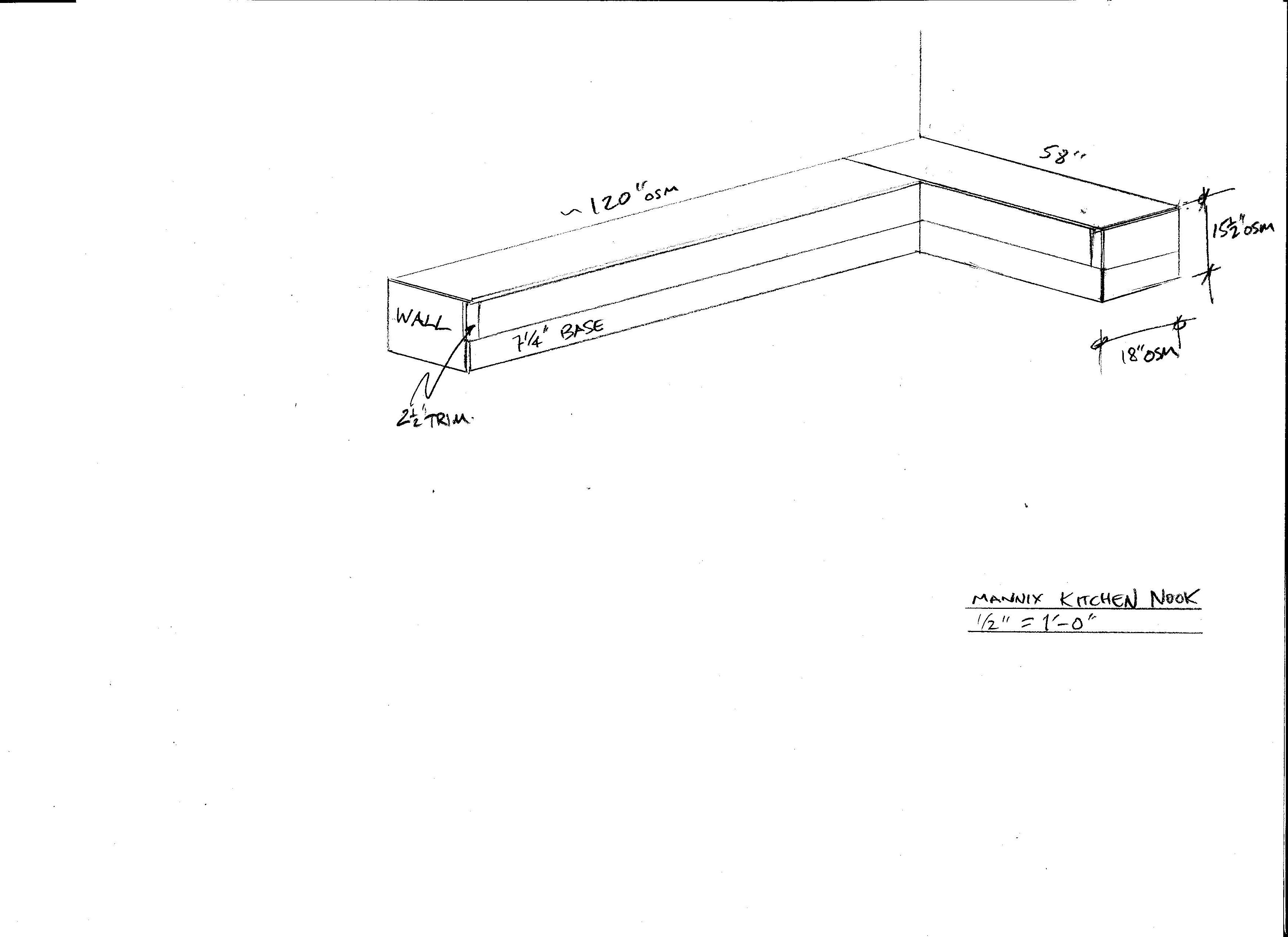
Our clients and their designer wanted a built-in kitchen nook to match the existing millwork and paint colour.